REFORMA APARTAMENTO RN

Ubicación

Bogotá-Colombia

Espacio

120m²

Año

2020

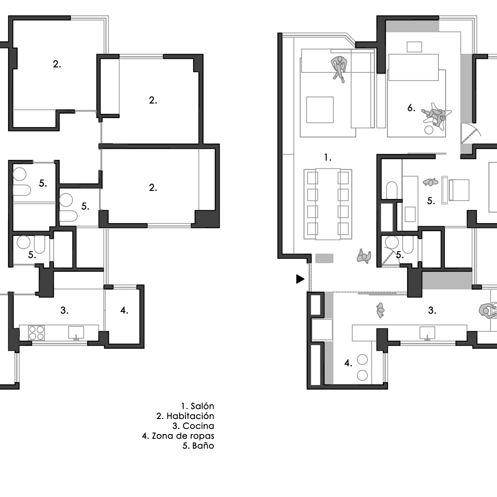
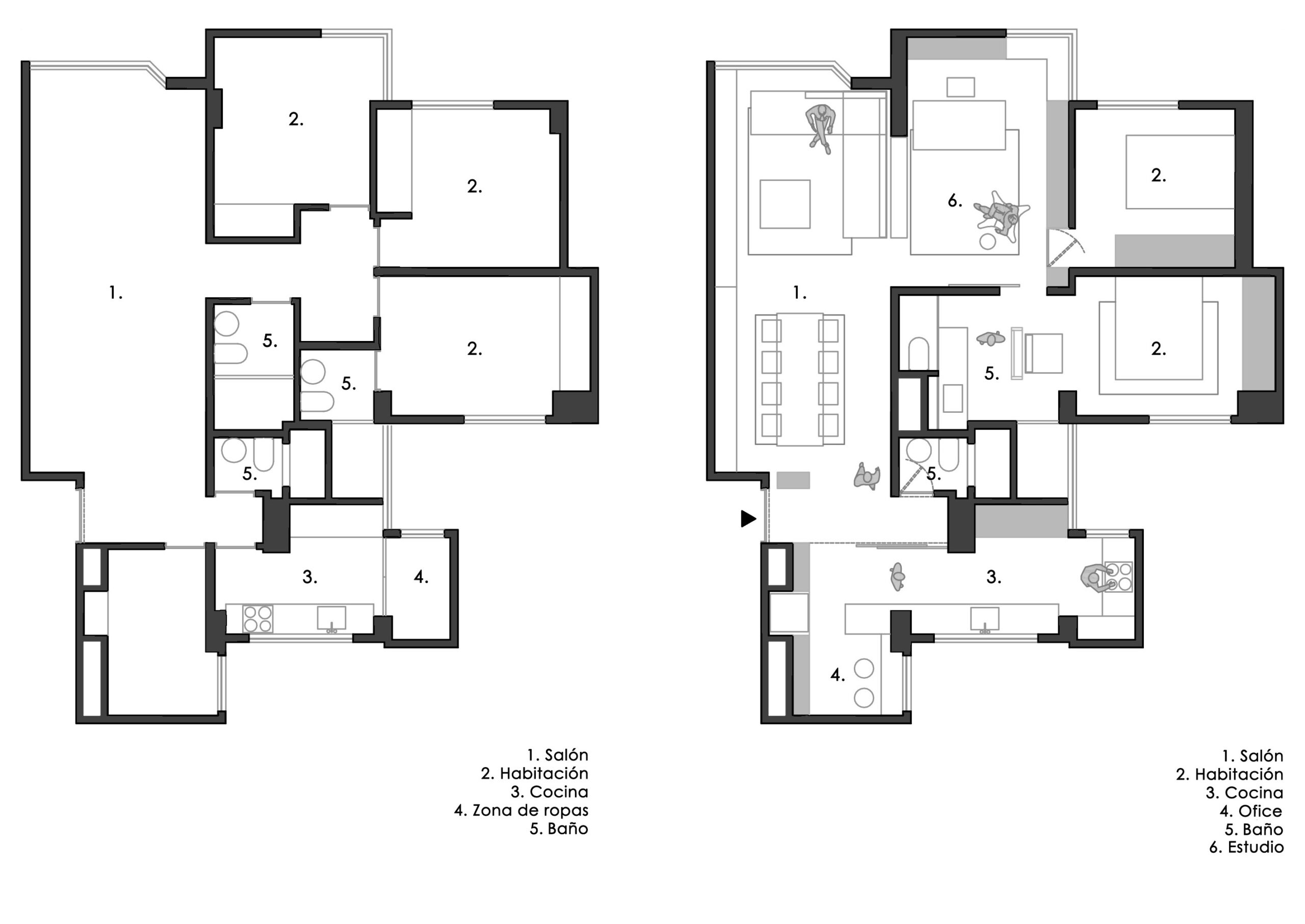
La reforma de este apartamento tiene como objetivo mejorar las condiciones de habitabilidad y reconfigurar el espacio útil. Suprimir las barreras visuales para generar continuidades se logra a través de eliminación de los tabiques y la incorporación de puertas de correderas de cristal en aquellos espacios que necesiten en algún momento del día privacidad o aislamiento. Por necesidades del cliente, se suprime una de las habitaciones y se convierte en un estudio completamente abierto a la zona social. A su vez, una pequeña habitación anexa a la cocina se convierte en parte de ésta como zona de desayuno y de apoyo a la nueva zona de ropas que se elimina de su posición original para ampliar la cocina. El baño de la habitación principal se descompone para incorporar la zona de lavabo a un espacio más abierto dejando en habitáculos cerrados el wáter y la ducha.