OFICINA DE ARQUITECTURA

Ubicación

Barcelona-España

Espacio

80m²

Año

2013

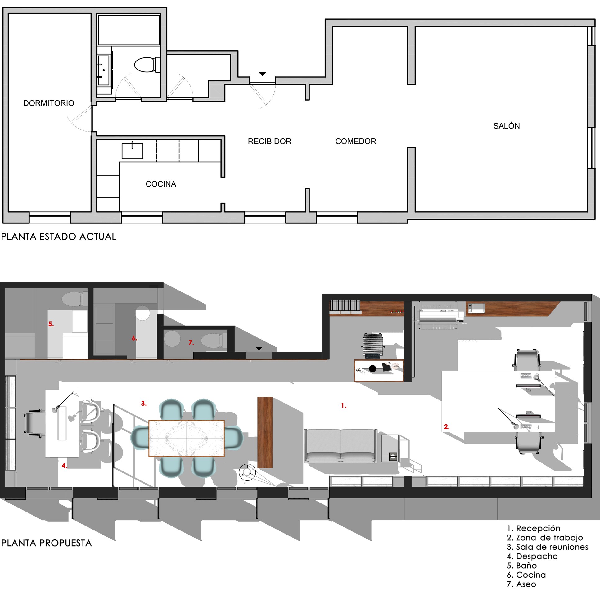
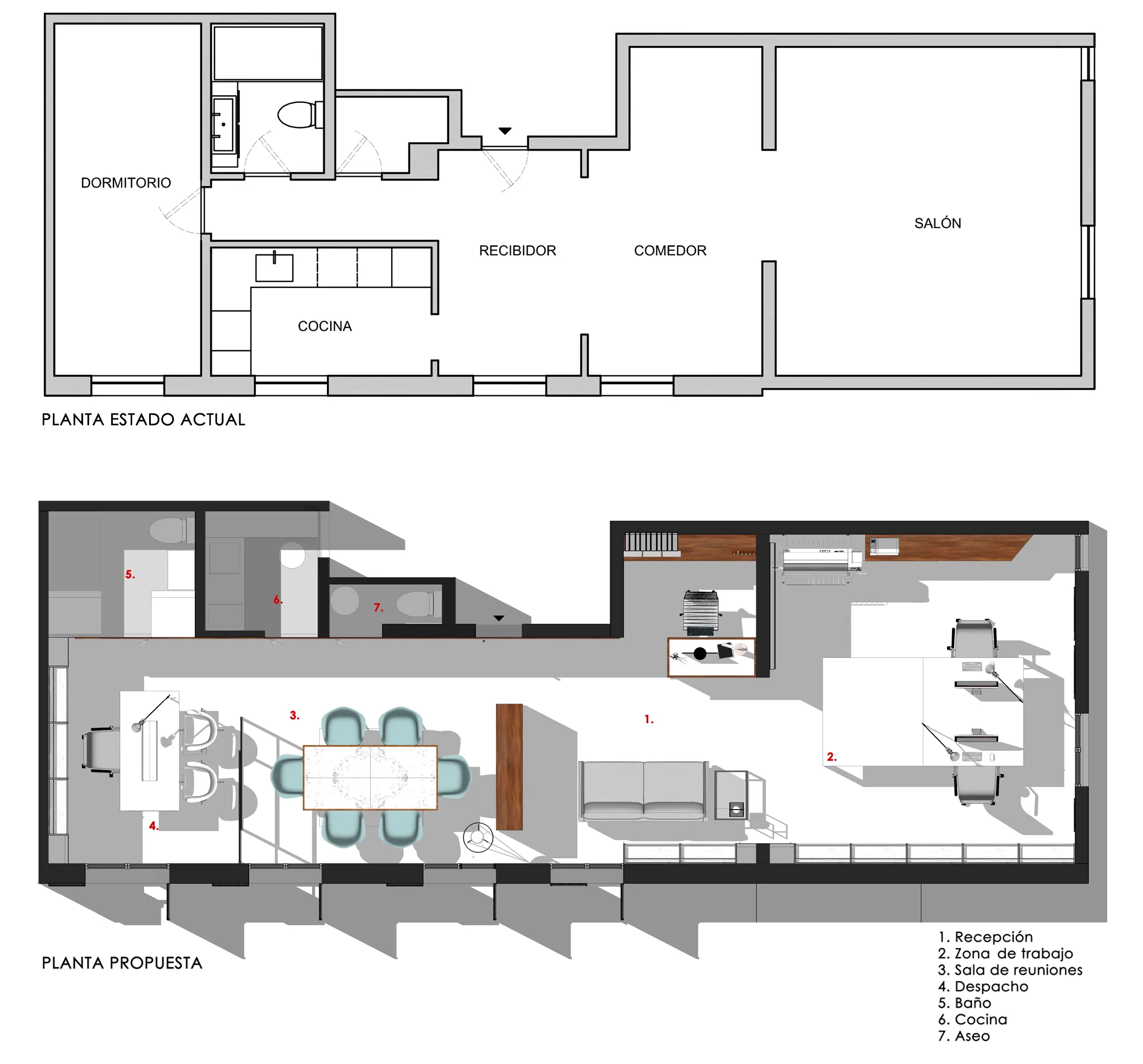
Reforma de un antiguo piso de vivienda en un espacio flexible para una oficina de arquitectura. El programa funcional comprende una zona de trabajo abierta, un despacho, sala de presentación de proyectos o reuniones, recepción y servicios anexos (cocina, baño y un aseo).

La estrategia de diseño ha girado en torno a dos principios: el espacio abierto y la continuidad espacial. El espacio abierto se ha conseguido eliminando los tabiques divisorios y ampliando la apertura entre el anterior salón y el comedor. Dos elementos de diseño refuerzan la continuidad espacial:

  • Un mueble de biblioteca que ocupa todo un lateral de la zona de trabajo y se proyecta desde ésta hacia la recepción.
  • El panelado en madera del lateral de la entrada. Este no solo se proyecta hacia el despacho, sino que lo vincula con la zona de reuniones y el espacio de recepción. Además, tiene una función práctica: es el límite físico entre los espacios funcionales y los de servicio (la cocina, el aseo y el baño).

Desde el punto de vista funcional, el proyecto se ha resuelto alojando la zona de trabajo en el espacio más amplio existente. La recepción, la sala de reuniones y el despacho comparten continuidad visual con la zona de trabajo.