CASA C

Ubicación

Bogotá-Colombia

Año

1996

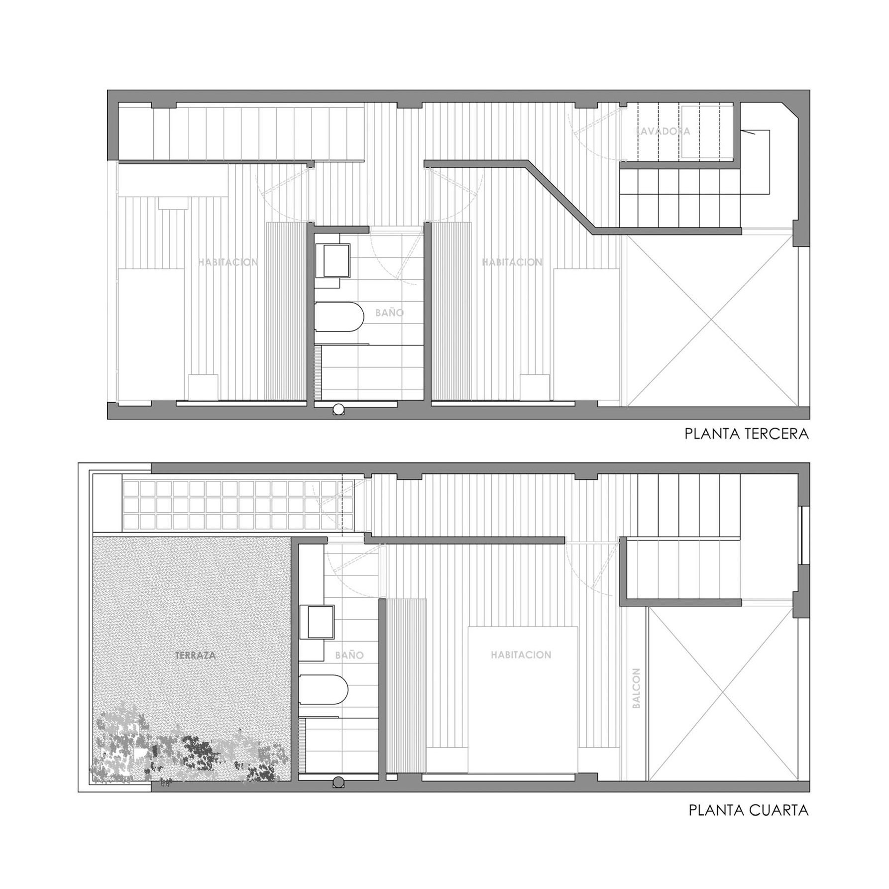
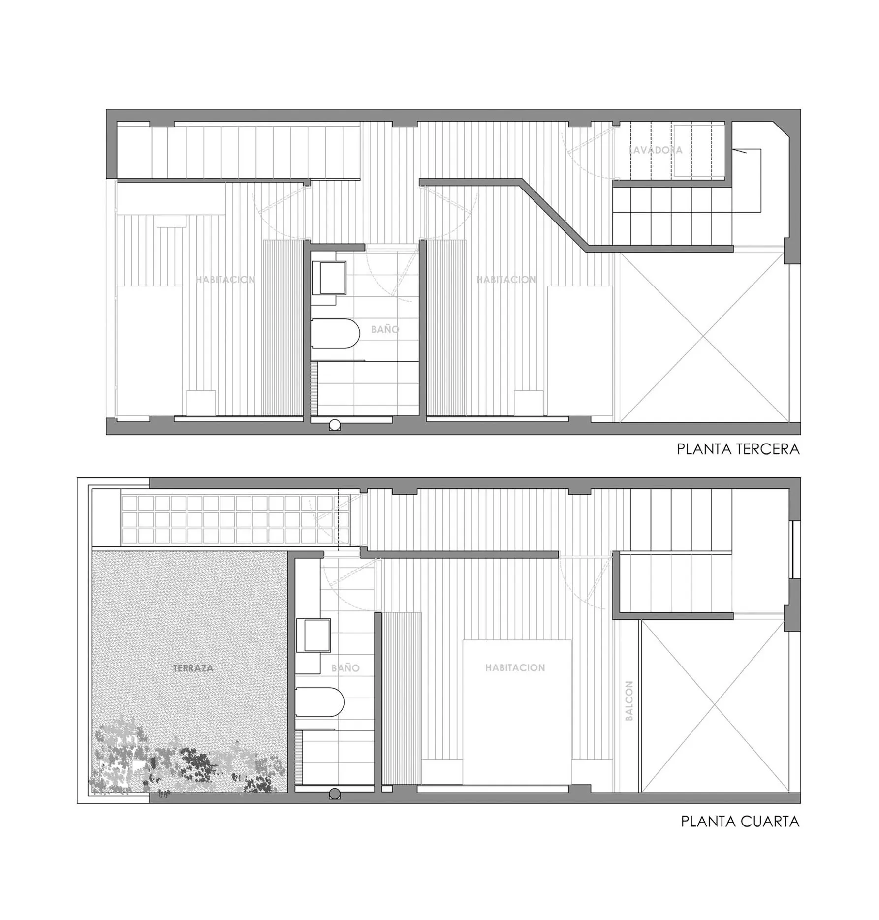
La casa surge como una reflexión respecto a la luz. En la planta baja, ésta se filtra a través del patio. A medida que se asciende aparecen nuevas sugerencias para que la luz sea protagonista. En la primera y segunda plantas, la luz entra por un tragaluz, algo que sugiere una manera distinta de percibirla; un trozo de cielo en un espacio cerrado. Un recorrido que finaliza a cielo abierto, en la terraza.

En la parcela, un rectángulo de 4.5m x 9.0m, se proyecta la vivienda para una familia que quiere contar con un apartamento de alquiler en planta baja. Este cuenta con un salón-cocina orientado hacia la calle y la habitación y el baño orientados hacia el patio interior.

La casa como tal se desarrolla a partir de la primera planta. El programa funcional se compone de salón-comedor y cocina abierta, dos habitaciones (planta segunda) y un estudio y terraza en la última planta.

El corredor de acceso y el patio, que sirve de distribuidor y en el que se ubica la escalera de acceso a la casa, constituyen los espacios comunes cuyos materiales (ladrillo, hormigón y gravilla) expresan ese carácter de lugar semi-público.